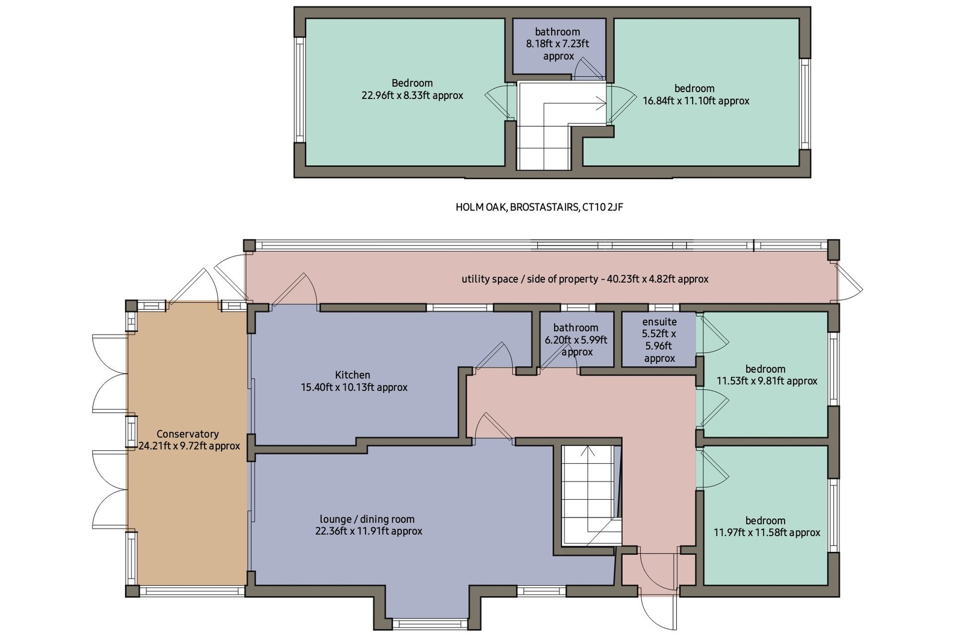
£540,000
- 4 Bedroom
- 3 Bathroom
- 2 Reception
- Detached Bungalow
Features
- 4 Bedroom Detached Bungalow
- Double Garage plus 2 Drives
- 50ft Garden Front & Rear
- South Facing Garden
- Corner Plot
- Sought After Location
- Close to Junior and Secondary School
- Short Walk into Town
