Property For Sale

Livingstone Road
St Peters, Broadstairs, CT10

Being Sold via Secure Sale online bidding. Terms & Conditions apply. Starting Bid £220,000

Springer Homes are delighted to offer this Terraced 2 bedroom property on Livingstone Road, St, Peters, Broadstairs, this property sure does have a nice feel to it. Here are the key features and details about the property:

Key Features:

  1. 2 Double Bedrooms 
  2. 2 Reception Rooms 
  3. Good Size Garden.
  4. Perfect investment opportunity.
  5. Perfect first home. 

Location Highlights:

  1. Broadstairs boasts a spectacular coastline with seven sandy beaches.
  2. Central Viking Bay offers children’s rides and beach huts.
  3. Botany Bay features photogenic chalk stacks, and Joss Bay has a surf school.
  4. The town is known for its fishermen’s cottages, clifftop walks, and independent shops.
  5. Broadstairs was Charles Dickens’ favourite holiday spot, and the Dickens House Museum is a legacy.
  6. St Peter’s Village Tours and The Escapement escape room provide entertainment.
  7. Broadstairs has a diverse culinary scene with smart restaurants, quaint cafes, and 1950s ice cream parlours.
  8. The Broadstairs Food Festival in autumn and Easter showcases Kentish produce and wine.

Property Details:

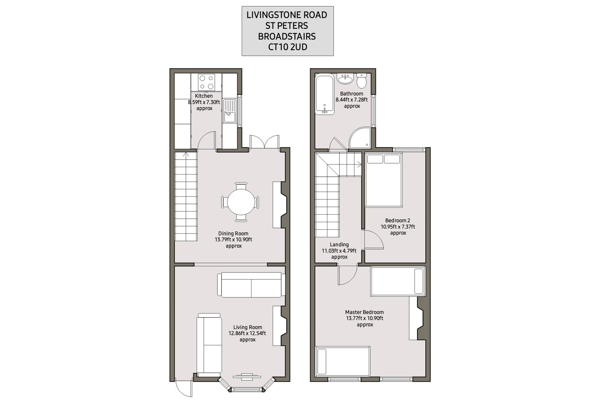
  • Entrance: Via pathway, straight into the lounge. 
  • Lounge (12.86ft x 12.54ft approx) Wooden flooring, white walls and a brick fireplace to add character 
  • Dining Room (13.79ft x 10.90ft approx) Wooden flooring, white and grey walls, door leading to the garden 
  • Kitchen (8.59ft x 7.30ft approx) Tiled flooring, white walls and a cream & Black kitchen 
  • Master Bedroom (13.77ft x 10.90ft approx) Grey carpets, grey walls, current set up for 2 girls. 
  • 2nd Bedroom (10.95ft x 7.37ft approx) Grey carpets, white walls  
  • Landing (11.03ft x 4.79ft approx) Lined carpets, painted in white & stairs down 
  • Bathroom (8.44ft x 7.28ft approx) Lino flooring, grey and tiled walls, shower & bathtub, white suite. 

This property is the perfect property for a family with visiting guests, with ample space making it an attractive prospect for potential buyers 

Auctioneers Additional Comments
Pattinson Auction are working in Partnership with the marketing agent on this online auction sale and
are referred to below as The Auctioneer.


This auction lot is being sold either under conditional (Modern) or unconditional (Traditional) auction
terms and overseen by the auctioneer in partnership with the marketing agent.
The property is available to be viewed strictly by appointment only via the Marketing Agent or The
Auctioneer. Bids can be made via the Marketing Agents or via The Auctioneers website.
Please be aware that any enquiry, bid or viewing of the subject property will require your details being
shared between both any marketing agent and The Auctioneer in order that all matters can be dealt
with effectively.


The property is being sold via a transparent online auction.
In order to submit a bid upon any property being marketed by The Auctioneer, all bidders/buyers will
be required to adhere to a verification of identity process in accordance with Anti Money Laundering
procedures. Bids can be submitted at any time and from anywhere.
Our verification process is in place to ensure that AML procedure are carried out in accordance with
the law.


A Legal Pack associated with this particular property is available to view upon request and contains
details relevant to the legal documentation enabling all interested parties to make an informed
decision prior to bidding. The Legal Pack will also outline the buyers’ obligations and sellers’
commitments. It is strongly advised that you seek the counsel of a solicitor prior to proceeding
with any property and/or Land Title purchase.


Auctioneers Additional Comments
In order to secure the property and ensure commitment from the seller, upon exchange of contracts
the successful bidder will be expected to pay a non-refundable deposit equivalent to 5% of the
purchase price of the property. The deposit will be a contribution to the purchase price. A non-
refundable reservation fee of up to 6% inc VAT (subject to a minimum of 6,000 inc VAT) is also
required to be paid upon agreement of sale. The Reservation Fee is in addition to the agreed
purchase price and consideration should be made by the purchaser in relation to any Stamp Duty
Land Tax liability associated with overall purchase costs.


Both the Marketing Agent and The Auctioneer may believe necessary or beneficial to the customer to
pass their details to third party service suppliers, from which a referral fee may be obtained. There is
no requirement or indeed obligation to use these

Share This Property

£220,000

  • 2 Bedroom
  • 1 Bathroom
  • 1 Reception
  • Terrace

Features

  • 2 Bedroom Terraced Home
  • 2 Reception rooms
  • Nice Size Garden
  • Gas Central Heating
  • Great Location
  • Spacious Bathroom
  • Close to Amenities
  • Close to London Links Via the Train
Make An Enquiry